Laboratorio in vendita

Busto Arsizio, Via del Gerbone
€ 85.000
1 locale 1 locale
115 Mq 115 Mq
1 bagno 1 bagno

Laboratorio in vendita

Busto Arsizio, Via del Gerbone

Descrizione annuncio

BUSTO ARSIZIO

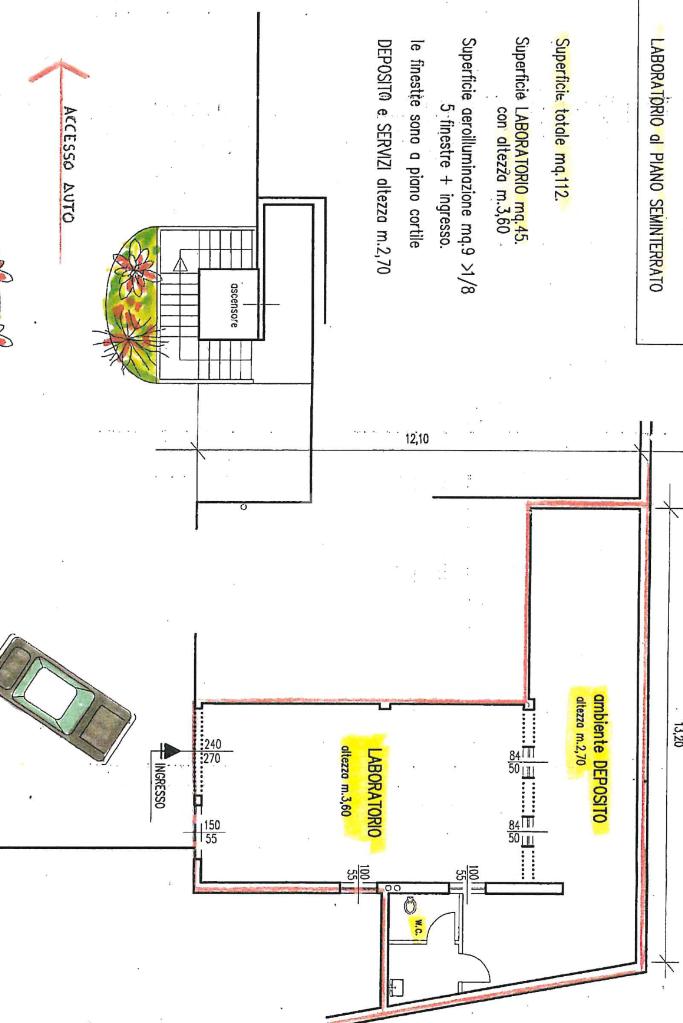
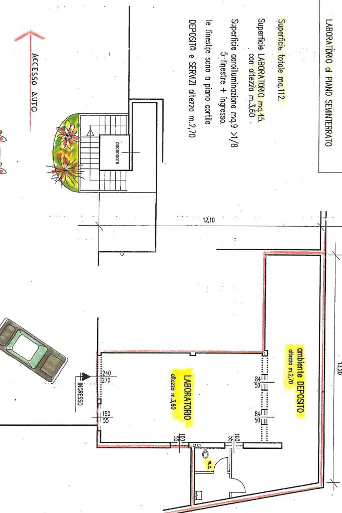
Nel comune di Busto Arsizio, proponiamo in vendita un laboratorio, ideale per diverse attività artigianali o di stoccaggio.

Situato in una posizione strategica, l'immobile si trova in zona Sempione, nelle vicinanze delle autostrade, garantendo un facile collegamento con le principali arterie di trasporto.

Il laboratorio offre un ambiente versatile con un'altezza di 3,60 metri, garantendo ampio spazio per attrezzature, macchinari e spazi lavorativi.

Una parte dell’immobile è adibita a magazzino, con un'altezza di 2,70 metri, perfetta per lo stoccaggio di materiali.

Completa la struttura un bagno funzionale.

L'accesso diretto con furgone facilita le operazioni di carico e scarico, rendendo l'immobile particolarmente adatto a chi necessita di una logistica efficiente.

Questa soluzione rappresenta un'opportunità interessante per chi cerca uno spazio lavorativo versatile e funzionale.

Affiliato: ANDROMEDA SRL

Viale Toselli 70 - 20025 Legnano (MI)
Tel. 0331.848744
E-mail:
WhatsApp 3756583900

Visita il sito della nostra agenzia:

https://legnano2

Il tuo immobile a portata di click
Vorreste rimanere quotidianamente informati sulla ricerca del vostro immobile?
Iscrivendovi alla nostra Newsletter potrete ricevere via mail la soluzione su misura per voi e per la vostra attività.
Contattaci per scoprire come fare.

Mostra tutto

Nelle vicinanze

Trasporto pubblico Trasporto pubblico
Busto Arsizio
Busto Arsizio
870 m
Castellanza
Castellanza
1,7 Km
Trasporto pubblico
390 m
Stazione FF.SS.
Stazione FF.SS.
890 m
Ricariche auto elettriche Ricariche auto elettriche
Olgiate Olona San Giorgio | EnelX
580 m
Olgiate Olona Pertini | EnelX
930 m
COOP Busto Arsizio
1,3 Km
Lidl Olgiate Olona
1,5 Km
AGESP SERVIZI
1,8 Km
Scuole Scuole
Scuola primaria Morelli - Scuola Secondaria di Primo Grado Schweitzer
360 m
Istituto Professionale di Stato per Servizi Commerciali, Turistici e Sociali Pietro Verri
600 m
Scuola Materna San Giovanni Bosco
940 m
Scuola Elementare Gerbone
1,1 Km
Istituto comprensivo Nicolò Tommaseo
1,1 Km
Farmacia Farmacia
Farmacia Santi Apostoli
430 m
Farmacia Liberty
1,0 Km
Farmacia Comunale 3
1,1 Km
Farmacia Bossi
1,4 Km
Farmacia Sant'Anna
1,5 Km
Ospedali Ospedali
Pronto Soccorso Ospedale Busto Arsizio
1,4 Km
Azienda Ospedaliera Ospedale di Circolo di Busto Arsizio
1,5 Km
Multimedica - Clinica Santa Maria
2,7 Km
Supermercati Supermercati
Esselunga
690 m
Carrefour
1,2 Km
Coop
1,2 Km
Penny
1,4 Km
Punto Simply
1,4 Km
Negozi Negozi
Panferrario
390 m
Kiabi
470 m
Ipermoda
480 m
Corti
520 m
Seconda Strada
660 m
Bar Bar
Vanilla Cafè
550 m
Bar
560 m
Caffè Della Fontana
980 m
Zero Village
1,1 Km
Shed club
1,2 Km
Ristoranti Ristoranti
Bar Trattoria Circolo G. Redaelli
380 m
Osteria Bistrot
380 m
Tourlé
540 m
Osteria dell'Angiolina
590 m
Ristorante pizzeria Capri
960 m
Mostra tutto

Caratteristiche

Rif.:
61151474
Piano:
Seminterrato con ascensore
Condizionamento:
Assente
Ascensore:
Riscaldamento:
Assente
Libero:
Mostra tutto
Prezzo Prezzo
€ 85.000
Rata mutuo Rata mutuo
€ 404 / mese
Spese annue Spese annue
€ 260
Proponi il tuo prezzoProponi il tuo prezzo

Altre caratteristiche

Descrizione dei locali
Bagno Cieco

Classe Energetica

Questo immobile è esente da classe energetica
Anno di costruzione:
1990
Riscaldamento:
Assente

Ti interessa visionare l'immobile?

Fissa un appuntamento  Fissa un appuntamento

Richiedi informazioni

Clicca su Leggi per aprire l'informativa
* Questi campi sono obbligatori

Calcola il tuo mutuo

Semplice e senza impegno
Anticipo

( % )
Mutuo

( % )

pochi semplici passi

inserisci i tuoi dati
Questionario completato
Grazie per aver richiesto un appuntamento senza impegno con un nostro Consulente del Credito e Assicurativo.

Hai inserito correttamente tutti i dati necessari e a breve riceverai una e-mail con un link da convalidare per inviare i tuoi dati.
Affiliato
Andromeda Srl
Viale Toselli, 70 20025 Legnano (MI)

Il nostro staff


  • Ermenegildo Pizzo
    Affiliato

  • Iside Lijoi
    Coordinatrice

  • Stefania Liardo
    Responsabile

  • Giulia Sanvito
    Collaboratrice
Viale Toselli, 70 20025 Legnano (MI)
Zona: Legnano-Rescaldina-Villacortese-Castellanza-Dairago-San Giorgio su Legnano
Mostra su mappa
Orari: Orari: dal lunedì al venerdì dalle 09.30 alle 12.30 e dalle 14.30 alle 19.00; il sabato dalle 09.30 alle 12.30
Affiliato
Andromeda Srl
Viale Toselli, 70 20025 Legnano (MI)

2026 Tecnocasa Franchising S.p.A. - P. IVA 08365160152 - Via Monte Bianco 60/A 20089 Rozzano (MI). Ogni agenzia ha un proprio titolare ed è autonoma. Privacy policy | Policy utilizzo | Cookie policy