Magazzino in vendita

Busto Arsizio, Via G. Rossini
€ 67.000
2 locali 2 locali
174 Mq 174 Mq
1 bagno 1 bagno

Magazzino in vendita

Busto Arsizio, Via G. Rossini

Descrizione annuncio

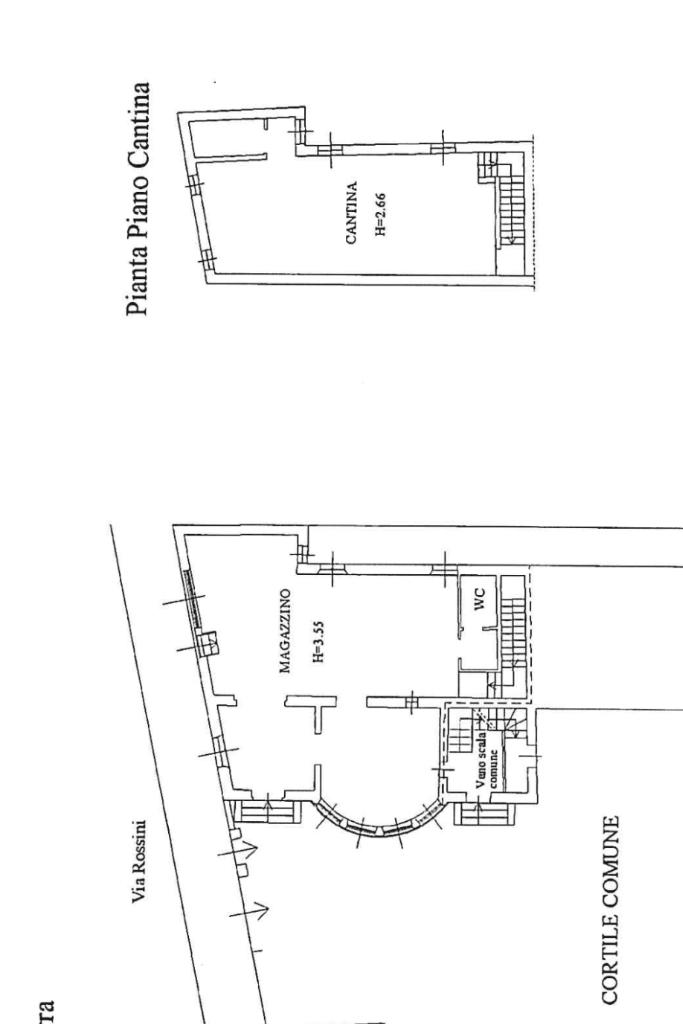
BUSTO ARSIZIO.

Nelle vicinanze di Corso Italia, in posizione ben visibile, Magazzino da ristrutturare di circa 100 mq. su strada con vetrina.

L'immobile è composto da ingresso, due locali comunicanti e servizio igienico. Dalla scala interna si accede alla cantina di circa 70 mq.

La posizione strategica e le vetrine su strada rendono questa proprietà un'opportunità interessante anche per chi desidera trasformarla in un negozio, previa modifica della destinazione d'uso.

La struttura si presta a molteplici utilizzi, rispondendo alle esigenze di chi cerca un ambiente funzionale e ben collegato.

La possibilità di personalizzazione degli spazi interni permette di adattare l'immobile alle specifiche necessità del proprio business.

Il posto auto in cortile non è di proprietà ma assegnato (come accordato tra condomini)

Possibilità di carico/scarico all'interno del cortile condominiale.

Libero a breve.

Affiliato: ANDROMEDA SRL

Viale Toselli 70 - 20025 Legnano (MI)
Tel. 0331.848744
E-mail:
WhatsApp 3756583900

Visita il sito della nostra agenzia:

https://legnano2

Il tuo immobile a portata di click
Vorreste rimanere quotidianamente informati sulla ricerca del vostro immobile?
Iscrivendovi alla nostra Newsletter potrete ricevere via mail la soluzione su misura per voi e per la vostra attività.
Contattaci per scoprire come fare.

Mostra tutto

Nelle vicinanze

Trasporto pubblico Trasporto pubblico
Busto Arsizio Nord
Busto Arsizio Nord
1,4 Km
Busto Arsizio
Busto Arsizio
1,8 Km
Trasporto pubblico
50 m
Viale Cadore
Viale Cadore
510 m
Ricariche auto elettriche Ricariche auto elettriche
COOP Busto Arsizio
1,1 Km
LIDL Busto Arsizio
1,2 Km
AGESP SERVIZI
1,4 Km
U2 Supermercato Busto Arsizio | EnelX
1,4 Km
BeCharge Busto Arsizio Stazione FNM
1,4 Km
Scuole Scuole
Scuola primaria Chicca Gallazzi
430 m
Scuola primaria Ezio Crespi
530 m
Scuola primaria Pontida
550 m
Scuola secondaria di primo grado Edmondo De Amicis
630 m
Scuola primaria Alessandro Manzoni
640 m
Farmacia Farmacia
Farmacia del Corso
250 m
Farmacia Bossi
550 m
Farmacia del Redentore
640 m
Farmacia Berti
770 m
Parafarmacia Santa Maria
820 m
Ospedali Ospedali
Azienda Ospedaliera Ospedale di Circolo di Busto Arsizio
700 m
Pronto Soccorso Ospedale Busto Arsizio
800 m
Supermercati Supermercati
Penny
220 m
Simply Market
260 m
EuroSpin
360 m
Tigros
760 m
Carrefour
930 m
Negozi Negozi
Voglia di pane
290 m
E... buona michetta a tutti
510 m
L'angolo del buongustaio
540 m
Primo Forno
660 m
Daem
680 m
Bar Bar
Baby Bar
240 m
Ravel Lidia csb
350 m
Il Tabaccaio di Corso Italia
380 m
Bar del Museo
440 m
Ambaradam
480 m
Ristoranti Ristoranti
Yoshi Sushi
200 m
Antica Pizza
210 m
Pizzamorefantasia
300 m
Graninbottega
310 m
Ristoranti
350 m
Mostra tutto

Caratteristiche

Rif.:
61117653
Piano:
Terra di 2
Totale piani:
2
Condizionamento:
Predisposizione impianto
Ascensore:
No
Riscaldamento:
Assente
Mostra tutto
Prezzo Prezzo
€ 67.000
Rata mutuo Rata mutuo
€ 316 / mese
Spese annue Spese annue
€ 720
Proponi il tuo prezzoProponi il tuo prezzo

Classe Energetica

E
E
E
E
E
E
E
E
E
EP globale non rinnovabile:
334.05 kW h/m² anno
EP invernale del fabbricato:
EP estiva del fabbricato:
Anno di costruzione:
1945
Riscaldamento:
Assente

Ti interessa visionare l'immobile?

Fissa un appuntamento  Fissa un appuntamento

Richiedi informazioni

Clicca su Leggi per aprire l'informativa
* Questi campi sono obbligatori

Calcola il tuo mutuo

Semplice e senza impegno
Anticipo

( % )
Mutuo

( % )

pochi semplici passi

inserisci i tuoi dati
Questionario completato
Grazie per aver richiesto un appuntamento senza impegno con un nostro Consulente del Credito e Assicurativo.

Hai inserito correttamente tutti i dati necessari e a breve riceverai una e-mail con un link da convalidare per inviare i tuoi dati.
Affiliato
Andromeda Srl
Viale Toselli, 70 20025 Legnano (MI)

Il nostro staff


  • Ermenegildo Pizzo
    Affiliato

  • Iside Lijoi
    Coordinatrice

  • Stefania Liardo
    Responsabile

  • Giulia Sanvito
    Collaboratrice
Viale Toselli, 70 20025 Legnano (MI)
Zona: Legnano-Rescaldina-Villacortese-Castellanza-Dairago-San Giorgio su Legnano
Mostra su mappa
Orari: Orari: dal lunedì al venerdì dalle 09.30 alle 12.30 e dalle 14.30 alle 19.00; il sabato dalle 09.30 alle 12.30
Affiliato
Andromeda Srl
Viale Toselli, 70 20025 Legnano (MI)

2025 Tecnocasa Franchising S.p.A. - P. IVA 08365160152 - Via Monte Bianco 60/A 20089 Rozzano (MI). Ogni agenzia ha un proprio titolare ed è autonoma. Privacy policy | Policy utilizzo | Cookie policy