Ufficio in vendita

Busto Arsizio, Via S. Pio X Papa Sarto
€ 105.000
3 locali 3 locali
150 Mq 150 Mq
1 bagno 1 bagno

Ufficio in vendita

Busto Arsizio, Via S. Pio X Papa Sarto

Descrizione annuncio

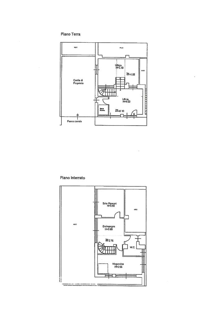
A Busto Arsizio, proponiamo in vendita un ampio ufficio di 150 mq.

Situato in zona Via Magenta, l'immobile si affaccia direttamente su strada con due vetrine, garantendo un'ottima visibilità.

L'immobile è composto da: ufficio di circa 60mq al piano terra più altri 90mq al piano sotterraneo

Offre spazi versatili, tra cui un uffici, sala riunioni, magazzino e un bagno. L'Ideale per gestire al meglio le attività quotidiane.

Completa la proprietà un cortile privato, accessibile tramite passo carraio, che offre due comodi posti auto.

Questa soluzione rappresenta un'opportunità interessante per chi cerca un ambiente funzionale e ben collegato nel comune di Busto Arsizio.

Mostra tutto

Nelle vicinanze

Trasporto pubblico Trasporto pubblico
Busto Arsizio Nord
Busto Arsizio Nord
800 m
Busto Arsizio
Busto Arsizio
2,3 Km
Trasporto pubblico
140 m
Via Ugo Foscolo
Via Ugo Foscolo
1,1 Km
Ricariche auto elettriche Ricariche auto elettriche
LIDL Busto Arsizio
120 m
U2 Supermercato Busto Arsizio | EnelX
530 m
BeCharge Busto Arsizio Stazione FNM
850 m
AGESP SERVIZI
1,3 Km
COOP Busto Arsizio
1,8 Km
Scuole Scuole
Istituto Cinematografico Michelangelo Antonioni
220 m
Scuola primaria Pieve di Cadore
260 m
Scuola primaria Ada Negri
510 m
Scuola secondaria di primo grado Biagio Bellotti
720 m
Liceo Scientifico Arturo Tosi
730 m
Farmacia Farmacia
Farmacia Consolaro
10 m
Farmacia Comunale 2
600 m
Farmacia Sant'Edoardo
980 m
Farmacia Perina
1,2 Km
Farmacia Comunale 4
1,2 Km
Ospedali Ospedali
Multimedica - Clinica Santa Maria
2,0 Km
Azienda Ospedaliera Ospedale di Circolo di Busto Arsizio
2,5 Km
Pronto Soccorso Ospedale Busto Arsizio
2,6 Km
Supermercati Supermercati
Lidl
110 m
Carrefour
300 m
Tigros
450 m
U2
550 m
D Più
570 m
Negozi Negozi
Bruno
610 m
L'isola della fantasia
950 m
Panificio Via Dante
990 m
Overkids
1,0 Km
Ma.Ri Dolce & salato
1,1 Km
Bar Bar
Caffetteria della stazione
790 m
Bar Milazzo
900 m
Il Cortiletto
1,1 Km
Bar Fiume
1,1 Km
7 & mezzo
1,1 Km
Ristoranti Ristoranti
Da Mimmo
640 m
Sole d'oro
910 m
La Lanterna
940 m
Antichi Sapori
1,0 Km
My Chicken
1,0 Km
Mostra tutto

Caratteristiche

Rif.:
61149588
Piano:
Terra
Posti auto:
2
Condizionamento:
Autonomo
Ascensore:
No
Riscaldamento:
Centralizzato
Mostra tutto
Prezzo Prezzo
€ 105.000
Rata mutuo Rata mutuo
€ 495 / mese
Spese annue Spese annue
€ 2.000
Proponi il tuo prezzoProponi il tuo prezzo

Classe Energetica

D
D
D
D
D
D
D
D
D
EP globale non rinnovabile:
498.77 kW h/m² anno
Anno di costruzione:
1960
Riscaldamento:
Centralizzato
Tipo impianto:
A radiatori
Tipo alimentazione:
Metano

Ti interessa visionare l'immobile?

Fissa un appuntamento  Fissa un appuntamento

Richiedi informazioni

Clicca su Leggi per aprire l'informativa
* Questi campi sono obbligatori

Calcola il tuo mutuo

Semplice e senza impegno
Anticipo

( % )
Mutuo

( % )

pochi semplici passi

inserisci i tuoi dati
Questionario completato
Grazie per aver richiesto un appuntamento senza impegno con un nostro Consulente del Credito e Assicurativo.

Hai inserito correttamente tutti i dati necessari e a breve riceverai una e-mail con un link da convalidare per inviare i tuoi dati.
Affiliato
Andromeda Srl
Viale Toselli, 70 20025 Legnano (MI)

Il nostro staff


  • Ermenegildo Pizzo
    Affiliato

  • Iside Lijoi
    Coordinatrice

  • Stefania Liardo
    Responsabile

  • Giulia Sanvito
    Collaboratrice
Viale Toselli, 70 20025 Legnano (MI)
Zona: Legnano-Rescaldina-Villacortese-Castellanza-Dairago-San Giorgio su Legnano
Mostra su mappa
Orari: Orari: dal lunedì al venerdì dalle 09.30 alle 12.30 e dalle 14.30 alle 19.00; il sabato dalle 09.30 alle 12.30
Affiliato
Andromeda Srl
Viale Toselli, 70 20025 Legnano (MI)

2026 Tecnocasa Franchising S.p.A. - P. IVA 08365160152 - Via Monte Bianco 60/A 20089 Rozzano (MI). Ogni agenzia ha un proprio titolare ed è autonoma. Privacy policy | Policy utilizzo | Cookie policy